Ref. 5412
Actualizado hacealrededor de 1 mes
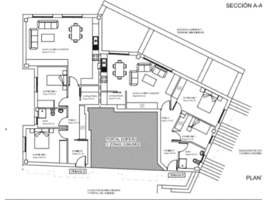
local en venta en MONDARIZ-BALNEARIO
C/BLANCO NAJERA - (PONTEVEDRA)


1 / 2
Características
Habitaciones:2
Sup. útil:160 m²
Aseos:2
Conservación
LOBREGO
Fase
LOBREGO
Servicios
No hay servicios disponibles
Observaciones
MONDARIZ BALNEARIO. Local en planta baja de 160 m2 de superficie. Cuenta con licencia para construir dos viviendas de dos dormitorios cada una. Licencia pagada y aprobada en el Concello. Buena inversión.Se incluye en el precio dos plazas de garaje también, una para cada piso.
Precio de venta
50.000 €
50.000 €Venta